Plan architecte maison au Maroc : guide complet 2025
HBA Studio, Marrakech vous accompagne pour transformer vos idées en espaces vivants. Nous captons vos besoins et votre style. Puis nous dessinons une feuille de route claire pour le projet.
Au Maroc, la réussite passe par l’anticipation. Un dessin précis guide la construction, facilite les démarches et réduit les aléas.
Nous coordonnons les étapes, de l’esquisse à la livraison. Vous gagnez en cohérence, en performance énergétique et en plus-value.
Contactez-nous : Rue Ibn aicha, Residence Elhadika Al Kobra, Immeuble D, N °8, Gueliz, Marrakech. Email: Hello@hbastudio.net. Tél: +212 661 66 03 09. Nous répondons sous 24h les jours ouvrables.
Points clés
- Un dessin sur-mesure qui respecte vos besoins et le contexte local.
- Anticipation et coordination pour une construction fluide.
- Optimisation de l’orientation, de la lumière et de la ventilation à Marrakech.
- Gain de temps et valeur ajoutée à la revente grâce à l’expertise.
- Accompagnement continu, du croquis à la remise des clefs.
Pourquoi un plan d’architecte change tout pour faire construire sa maison en 2025
Un bon dessin transforme un rêve en chantier maîtrisé. Il fixe les attentes, clarifie les surfaces et traduit vos besoins en espaces pratiques.
Passer par un architecte en mission complète fait gagner du temps. Nous sélectionnons et coordonnons les entreprises. Nous gérons les démarches administratives. Le calendrier se respecte mieux. Les aléas se réduisent.
Une conception sur-mesure optimise l’énergie. Orientation, isolation et systèmes de chauffage sont pensés dès la première esquisse. Le résultat améliore le confort et baisse les consommations.
Maison sur-mesure, optimisation des espaces et plus-value
- Espaces justes : circulations réduites, lumière maîtrisée.
- Équipements anticipés : rangements intégrés et buanderie fonctionnelle.
- Valeur durable : caractère unique et performances qui renforcent le prix à la revente.
HBA Studio vous conseille et pilote votre projet à Marrakech. Contactez-nous : Hello@hbastudio.net – +212 661 66 03 09. Réponse sous 24h jours ouvrables.
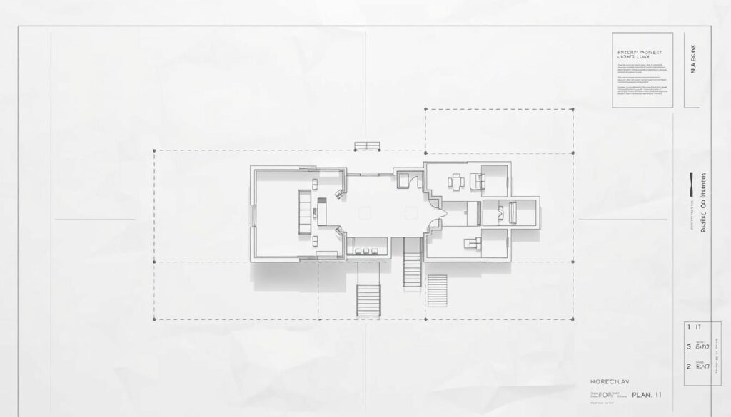
Les types de plans d’architecte indispensables pour votre projet
Chaque dessin révèle une intention: positionner, mesurer, protéger. Nous rassemblons les documents qui clarifient l’implantation et l’usage. Ils servent à obtenir le permis et à guider les entreprises.

Plan de masse et plan de situation
Le plan de masse et le plan situation donnent la vue d’ensemble. Ils situent la future maison, les limites, les accès et le voisinage.
La rose des vents et l’échelle permettent de cadrer l’ensoleillement et l’orientation.
Implantation et aménagement
Le plan d’implantation précise la place exacte de la construction sur la parcelle.
Le plan d’aménagement définit l’agencement intérieur et la hiérarchie des pièces.
Esquisses, perspectives 3D et plans de niveau
Les esquisses et les rendus 3D donnent une première idée du style.
Les plans de niveau organisent le rez-de-chaussée et chaque étage. Ils clarifient la circulation et la surface utile.
Façades, coupes et techniques
Les élévations montrent les volumes, les ouvertures, la toiture et les matériaux.
Les plans de coupe contrôlent les hauteurs et les pentes. Les plans techniques détaillent les réseaux et les équipements. Tout est pensé pour respecter les normes.
Plan cadastral
Le plan cadastral fixe les limites juridiques et le contexte réglementaire. Il sécurise la situation foncière.
« Chaque type de document est une mesure qui traduit l’idée en construction. »
HBA Studio élabore et coordonne l’ensemble de ces documents à Marrakech. Contact direct: https://hbastudio.ma/contact-architecte-marrakech/ – +212 661 66 03 09.
Lire et comprendre un plan architecte maison comme un pro
Décoder un document technique clarifie l’usage réel de chaque espace. Nous vous guidons pour lire l’échelle, repérer l’orientation et comprendre la rose des vents.
Échelle, orientation et rose des vents: bases pour décrypter les plans
Commencez par l’échelle. Elle transforme les traits en mesures tangibles et évite les illusions.
Repérez la rose des vents. L’exposition influence la lumière du jour et la tranquillité des pièces.
Légendes, symboles et surfaces: maîtriser les éléments graphiques
Décodage rapide : légendes, hachures, cotes et niveaux forment un alphabet visuel.
Identifiez les pièces et la surface utile. La sensation d’espace dépend aussi des circulations et de l’implantation du mobilier.
Plan de vente et VEFA: ce que révèlent les documents avant achat sur plan
En VEFA, le plan de vente est normalisé. Il permet de comparer l’exposition, les accès et la situation de la future maison.
Besoin d’une revue de plans avant achat ou lancement de chantier ? Écrivez à Hello@hbastudio.net — réponse sous 24h jours ouvrables. https://hbastudio.ma/services-architecture-marrakech/
« Une heure de lecture suffit souvent à lever les doutes et à affiner votre idée. »
De l’idée à la livraison: le processus de conception avec un architecte à Marrakech
Chaque projet commence par une idée qui doit devenir un parcours clair et sécurisé. Nous définissons vos besoins, esquissons, puis transformons ces traits en documents exploitables.
Mission complète: conception, coordination des entreprises et démarches de permis
HBA Studio pilote l’ensemble du processus. Nous réalisons la conception et la conception technique. Nous constituons le dossier pour le permis construire et les autorisations liées.
Nous consultons les entreprises. Les quantitatifs et les équipements sont précis. Sur le chantier, nous coordonnons, tenons le calendrier et assurons la qualité jusqu’à la réception.

Styles et matériaux: traditionnel, contemporain, bois, béton et finitions
À Marrakech, le style oscille entre ancrage et modernité. Pierre locale, bois chaleureux, béton et acier dialoguent selon l’usage et le climat.
Les étages, les circulations verticales et les finitions signent l’atmosphère. Nous utilisons AutoCAD, ArchiCAD et SketchUp pour rendre visible chaque choix.
« Un processus exigeant devient apaisant quand un chef d’orchestre tient la feuille de route. »
Contact : HBA Studio — +212 661 66 03 09 — Hello@hbastudio.net — https://hbastudio.ma/contact-architecte-marrakech/
Budget et prix d’un plan architecte maison: facteurs clés au Maroc
Évaluer le budget dès l’esquisse évite les mauvaises surprises en chantier. Le prix final dépend d’éléments concrets : la forme du volume, la surface, le nombre d’étages et la qualité des finitions.
Complexité, surfaces et étages
La complexité géométrique augmente les coûts. Un volume simple reste plus économique.
La surface et la présence d’un étage influencent le montant. Une plain-pied peut coûter jusqu’à 20% moins qu’un projet avec étage.
Matériaux, équipements et niveau de finition
Le choix des matériaux change la note. L’ossature bois est souvent moins chère que le parpaing ou la brique.
Finitions et équipements (CVC, domotique, éclairage) créent de grands écarts. Il faut arbitrer pour optimiser l’élégance et le budget.
Honoraires et optimisation globale
Nos honoraires se situent généralement entre 10 et 15% HT des travaux, avec un taux dégressif selon le montant. Cet investissement sécurise délais, qualité et gestion des devis.
- Le prix naît de la complexité. faut -il simplifier ou affirmer la forme?
- Plans et phasage sauvent des montants : études, appels d’offres, négociation.
- Anticiper normes et permis évite reprises coûteuses.
« Un chiffrage transparent permet de comparer variantes, de la maison moderne à la maison plus traditionnelle. »
Pour une estimation précise et un phasage budgétaire, contactez HBA Studio : Hello@hbastudio.net – +212 661 66 03 09. Réponse sous 24h jours ouvrables. https://hbastudio.ma/services-architecture-marrakech/
Conclusion
Une feuille cohérente transforme l’idée en espaces concrets et vivants.
Un dessin juste donne au projet une clarté immédiate. Il guide l’agencement, l’orientation et le sol. Il facilite aussi le permis construire.
Nous orchestrons les éléments — pièces, toiture, matériaux — pour que vos espaces respirent. Les plans racontent votre histoire et sécurisent la construction.
Faut‑il trancher entre style traditionnel et maison moderne ? Non. Les deux peuvent coexister selon la situation et votre vie.
Parlons de votre projet. Nous serons ravis de vous accompagner. Passez nous voir : Rue Ibn aicha, Résidence Elhadika Al Kobra, Immeuble D, N°8, Gueliz, Marrakech. Écrivez à Hello@hbastudio.net ou appelez +212 661 66 03 09. Réponse sous 24h jours ouvrables. Démarrer : https://hbastudio.ma/contact-architecte-marrakech/



